首页 > 器件类别 > 无线/射频/通信 > 光纤
 PDF数据手册

OL4450L-A-AFMUJ-S1

描述:
Laser Diode Module Emitter, 1470nm Min, 1500nm Max, MU-J Connector, Panel Mount, Through Hole Mount
分类:
文件大小:
208KB,共8页
制造商:
概述
Laser Diode Module Emitter, 1470nm Min, 1500nm Max, MU-J Connector, Panel Mount, Through Hole Mount
器件参数
参数名称
属性值
厂商名称
LAPIS Semiconductor Co Ltd
Reach Compliance Code
unknown
主体高度
27.6 mm
内置特性
ISOLATOR, MONITOR PHOTODIODE
连接类型
MU-J CONNECTOR
光纤设备类型
LASER DIODE MODULE EMITTER
光纤类型
9/125, SMF
安装特点
PANEL MOUNT, THROUGH HOLE MOUNT
最大工作波长
1500 nm
最小工作波长
1470 nm
标称工作波长
1480 nm
电源电流
120 mA
表面贴装
NO
最小阈值电流
27 mA
传输类型
DIGITAL
文档预览
JOG-01155 Rev. 8
Optical Components
OL3450L-A,OL3451L-A,OL3453L-A
OL4450L-A,OL4451L-A,OL4453L-A
OL4450L-B,OL4451L-B,OL4453L-B
OL5450L-A,OL5451L-A,OL5453L-A
OL5450L-B,OL5451L-B,OL5453L-B
OL6450L-A,OL6451L-A,OL6453L-A
Series
2mWCoaxial DFB Laser Diode Modules
Rev. 8 [5. 2009]
1. DESCRIPTION
The OL3450L-A, OL3451L-A, OL3453L-A, OL4450L-A, OL4451L-A, OL4453L-A,
OL4450L-B,OL4451L-B,OL4453L-B, OL5450L-A, OL5451L-A, OL5453L-A, OL5450L-B,
OL5451L-B, OL5453L-B, OL6450L-A, OL6451L-A, OL6453L-A series consist of an
MQW-DFB laser diode, a monitor PD, a single-stage optical isolator, a single-mode fiber and a
coaxial package.
2. FEATURES
High output power: 2.0mW fiber output power under CW
Wide operating temperature range: Tc=0 to +70
°C
Side-mode suppression: 30dB
Multi-quantum-well (MQW) DFB structure
Internal monitor PD for power control
Built-in single-stage optical isolator
Coaxial Package
No TEC required
3. APPLICATION
WDM supervisory channel in SDH system with optical in-line amplifier
Drawing No: JOG-01155 Rev. 8
-1-
JOG-01155 Rev. 8
4.OPTICAL AND ELECTRICAL CHARACTERISTICS
Parameter
Fiber Output Power
Threshold Current
Operation Current
Forward Voltage
Symbol
Pf
Ith
Iop
Vf
(Tc = 0 to +70°C, unless otherwise specified)
Test Conditions
Min.
Typ.
Max.
Unit
CW
2.0
mW
Tc=+25°C,CW
10
35
mA
Tc=+70°C,CW
27
40
Pf=2.0mW,CW
50
120
mA
Pf=2.0mW,CW
1.1
1.5
V
1300
1310
1320
OL345xL-A
1470
1480
1490
OL445xL-A
1480
1490
1500
OL445xL-B
Pf=2.0mW
nm
1500
1510
1520
OL545xL-A
,CW
1510
1520
1530
OL545xL-B
1620
1630
1640
OL645xL-A-S1
1625
1630
1645
OL645xL-A-S2
Pf=2.0mW,CW, Tc=+25°C
Pf =2.0mW,Ibias=Ith
10-90%
Vrd=5V, Tc=+25°C
Pf=2.0mW,CW,Tc=+25°C
(RT to WCT)
30
0.5
20
50
-1
---
+1
dB
ns
nA
µ
A
dB
Peak Wavelength
λp
Side-mode
ratio
suppression
SMSR
Tr/Tf
Id
Im
TRE
Rise/Fall times
Photodiode Dark Current
Monitor Current
Tracking Error*
*TRE=10*log{(Pf@0∼+70°C )/(Pf@25°C)} at Im hold(@25°C)
5.ABSOLUTE MAXIMUM RATING
(Tc = +25°C, unless otherwise specified)
Rating
Unit
3
mW
2
V
10
mA
3
mA
15
V
0 to +70
°
C
-40 to +85
°
C
260
°
C
Parameter
Fiber Output Power
LD Reverse Voltage
Monitor PD Forward Current
Monitor PD Reverse Current
Monitor PD Reverse Voltage
Operating Case Temperature (Tc)
Storage Temperature
Lead Soldering Temperature (10s)
Symbol
Pf
Vrl
Ifd
I
rd
Vrd
Tc
Tstg
-
Drawing No: JOG-01155 Rev. 8
-2-
JOG-01155 Rev. 8
6.CONNECTOR AND FIBER SPECIFICATIONS
Parameter
Type
Mode Field Diameter
Cladding Diameter
Jacket Diameter
Length
Connector Type
Specifications
SM
9+/-1
125+/-2
900
1(Min)
FC/SC/LC/MU/MU-J
Unit
---
µm
µm
µm
m
---
7.ORDERING INFORMATION
OL 6 45 0 L – A – AF SC – S1
Wavelength
3: 1.3µm
4: 1.4µm
5: 1.5µm
6: 1.6µm
Pin Assignment
0: C type
1: A type
3: B type
(See P.5)
Peak Wavelength
A, B: See Table A (P.4)
Flange type
AF: Angled Flange
SF: Straight Flange
NF: No Flange
AT: Angled Thin Flange
Connector type
SC: SC Connector
FC: FC Connector
LC: LC Connector
MU: MU Connector
MUJ: MU-J Connector
Wavelength Tolerance
S1 (default), S2: See Table A (P.4)
Drawing No: JOG-01155 Rev. 8
-3-
JOG-01155 Rev. 8
Table A. Peak Wavelength vs. LAPIS Semiconductor Part Number
Peak Wavelength(Typ.)
1310nm
1480nm
1490nm
1510nm
1520nm
1630nm
1630nm
Wavelength Tolerance
+/-10nm
+/-10nm
+/-10nm
+/-10nm
+/-10nm
+/-10nm
+15/-5nm
LAPIS Semiconductor Part Number
OL345xL-A
OL445xL-A
OL445xL-B
OL545xL-A
OL545xL-B
OL645xL-A-S1
OL645xL-A-S2
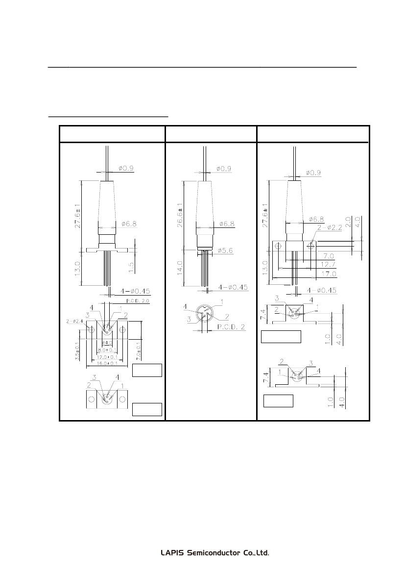
8.OUTLINE DRAWING
Length (mm)
Drawing No: JOG-01155 Rev. 8
-4-
JOG-01155 Rev. 8
All dimensions in millimeters
Flange Type (continued)
Straight flange
No flange
Angled flange
A,C type
C type
B type
A type
Drawing No: JOG-01155 Rev. 8
-5-
晓刚电学计算小程序
晓刚电学计算小程序 本程序比较简单比较适合像我这样的初学者使用 晓刚电学计算小程序 先谢再下载 Re...
fighting 模拟电子
振动状态下频率源特性测试技术研究
文摘阐述了频率稳定性时频域表征的理论和测试方法,以及在振动条件下测量频率 稳定性的意义,详细介绍...
JasonYoo 测试/测量
降低3G网络部署成本的几种思路
降低3G网络部署成本的几种思路 摘要:2004年以来,全球迎来3G部署高潮,3G技术的发展重点已从...
mdreamj 无线连接
【2024 DigiKey 创意大赛】物料开箱
感谢EEWORLD和Digikey联合举办的 【2024 DigiKey 创意大赛】,物料顺利收到...
ming899 DigiKey得捷技术专区
MIPI D PHY VOD0 VOD1不对称问题
CLK和DATA差分线,和差分对间走线等长,不排除核心板地受SW类开关电源影响,请教下有更好的修改...
张广慧 汽车电子
ST NUCLEO-H533RE移植RT-Thread实现按键控制led亮灭
一、创建工程流程 STM32CubeMX选项如下图 使用的管脚 使用PC13作...
crz_21 stm32/stm8
热门器件
热门资源推荐
器件捷径:
E0 E1 E2 E3 E4 E5 E6 E7 E8 E9 EA EB EC ED EE EF EG EH EI EJ EK EL EM EN EO EP EQ ER ES ET EU EV EW EX EY EZ F0 F1 F2 F3 F4 F5 F6 F7 F8 F9 FA FB FC FD FE FF FG FH FI FJ FK FL FM FN FO FP FQ FR FS FT FU FV FW FX FY FZ G0 G1 G2 G3 G4 G5 G6 G7 G8 G9 GA GB GC GD GE GF GG GH GI GJ GK GL GM GN GO GP GQ GR GS GT GU GV GW GX GZ H0 H1 H2 H3 H4 H5 H6 H7 H8 HA HB HC HD HE HF HG HH HI HJ HK HL HM HN HO HP HQ HR HS HT HU HV HW HX HY HZ I1 I2 I3 I4 I5 I6 I7 IA IB IC ID IE IF IG IH II IK IL IM IN IO IP IQ IR IS IT IU IV IW IX J0 J1 J2 J6 J7 JA JB JC JD JE JF JG JH JJ JK JL JM JN JP JQ JR JS JT JV JW JX JZ K0 K1 K2 K3 K4 K5 K6 K7 K8 K9 KA KB KC KD KE KF KG KH KI KJ KK KL KM KN KO KP KQ KR KS KT KU KV KW KX KY KZ
索引文件:
2385  632  1091  1217  105  49  13  22  25  3 
需要登录后才可以下载。
登录取消
下载 PDF 文件