首页 > 器件类别 > 无线/射频/通信 > 光纤
 PDF数据手册

OL5453L-2-AFLC

描述:
DFB Laser Module Emitter, 1500nm Min, 1580nm Max, 2500Mbps, LC Connector, Panel Mount, Through Hole Mount
分类:
文件大小:
193KB,共6页
制造商:
概述
DFB Laser Module Emitter, 1500nm Min, 1580nm Max, 2500Mbps, LC Connector, Panel Mount, Through Hole Mount
器件参数
参数名称
属性值
厂商名称
LAPIS Semiconductor Co Ltd
Reach Compliance Code
unknow
主体高度
27.6 mm
内置特性
ISOLATOR, MONITOR PHOTODIODE
通信标准
OC-48, STM-16
连接类型
LC CONNECTOR
数据速率
2500 Mbps
最长下降时间
0.09 ns
光纤设备类型
DFB LASER MODULE EMITTER
光纤类型
SMF
安装特点
PANEL MOUNT, THROUGH HOLE MOUNT
最高工作温度
85 °C
最低工作温度
最大工作波长
1580 nm
最小工作波长
1500 nm
标称工作波长
1540 nm
上升时间
0.09 ns
光谱宽度
0.2 nm
电源电流
110 mA
表面贴装
NO
最小阈值电流
40 mA
传输类型
DIGITAL
文档预览
JOG-01146 Rev.5
Optical Components
OL5450L-2,OL5451L-2, OL5453L-2
Series
2mWCoaxial DFB Laser Diode Modules
Rev. 5 [10. 2008]
1. DESCRIPTION
The OL5450L-2, OL5451L-2, OL5453L-2 series consist of an MQW-DFB laser diode, a
monitor PD, a single-stage optical isolator, a single-mode fiber and a coaxial package.
These modules are coaxial DFB Laser Diode Modules for 2.5Gbit/s transmission with high
power at high temperature.
2. FEATURES
Fiber output power: Pf=2.0mW
Wide operating temperature range: Tc=0 to +85
°C
Side mode suppression: 32dB
Multi-quantum-well (MQW) DFB structure
Internal monitor PD for power control
Built-in single-stage optical isolator
Coaxial Package
No TEC required
3. APPLICATION
OC-48, STM-16
Drawing No: JOG-01146 Rev.5
-1-
JOG-01146 Rev.5
4.OPTICAL AND ELECTRICAL CHARACTERISTICS
Parameter
Fiber Output Power
Fiber Output Power
(Average)
Threshold Current
Operation Current
Slope efficiency
Modulation Current
Peak Wavelength
Spectral Width
Side-mode suppression
ratio
Rise/Fall times
Relative Intensity Noise
Monitor Current
Tracking Error**
Symbol
Pf
P
AVG
(Tc = 0 to +85°C, unless otherwise specified)
Test Conditions
Min.
Typ.
Max.
Unit
CW
2.0
mW
Modulated
Tc=+25°C ,CW,BOL
Tc=+85°C,CW,BOL
Tc=+85°C,CW,EOL
Iop
η
Imod
λp
∆λ
SMSR
Tr/Tf
RIN
Im
TRE
Pf=2.0mW,CW
Pf=2.0mW,
CW,Tc=+25°C
Pf=2.0mW,CW,Tc=+25°C
Pf=2.0mW,CW
Pf=2.0mW,CW,-20dB
Pf=2.0mW,CW
P
AVG
=
1.0mW,20-80%
ExR*=9dB
Pf=2.0mW,CW
Pf=2.0mW,CW, Tc=+25°C
Pf=2.0mW,CW
70
0.05
1500
0.2
32
40
0.09
50
-1
-140
400
---
0.15
-130
2200
+1
0.073
30
40
1580
0.5
1.0
7
25
15
40
1.5*Ith-
BOL
mW
Ith
mA
mA
W/A
mA
nm
nm
dB
ns
dB/Hz
µ
A
dB
110
*ExR=Extinction ratio
**TRE=10*log{(Pf@0∼+85°C )/(Pf@25°C)} at Im hold(@25°C)
5.ABSOLUTE MAXIMUM RATING
(Tc = +25°C, unless otherwise specified)
Rating
Unit
4
mW
2
V
10
mA
3
mA
30
V
0 to +85
°
C
-40 to +85
°
C
260
°
C
Parameter
Fiber Output Power
LD Reverse Voltage
Monitor PD Forward Current
Monitor PD Reverse Current
Monitor PD Reverse Voltage
Operating Case Temperature (Tc)
Storage Temperature
Lead Soldering Temperature (10s)
Symbol
Pf
Vrl
Ifd
Ird
Vrd
Tc
Tstg
-
Drawing No: JOG-01146 Rev.5
-2-
JOG-01146 Rev.5
6.CONNECTOR AND FIBER SPECIFICATIONS
Parameter
Type
Mode Field Diameter
Cladding Diameter
Jacket Diameter
Length
Connector Type
Specifications
SM
9+/-1
125+/-2
900
1(Min)
FC/SC/LC/MU/MU-J
Unit
---
µm
µm
µm
m
---
7.ORDERING INFORMATION
OL545 0 L – 2 – AF SC
Pin Assignment
0: C type
1: A type
3: B type
(See P.4)
Flange type
AF: Angled Flange
SF: Straight Flange
NF: No Flange
Connector type
SC: SC Connector
FC: FC Connector
LC: LC Connector
MU: MU Connector
MUJ: MU-J Connector
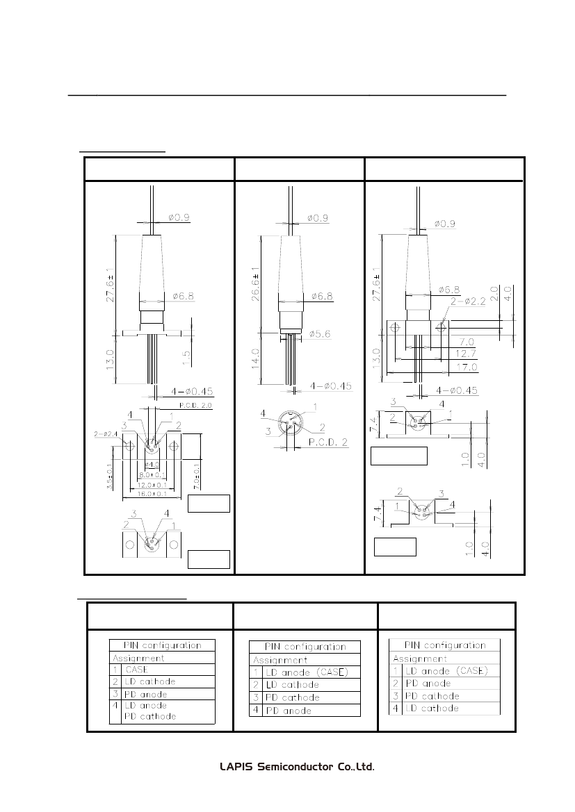
8.OUTLINE DRAWING
Length (mm)
Drawing No: JOG-01146 Rev.5
-3-
JOG-01146 Rev.5
ALL DIMENSIONS IN MILLIMETERS
Flange Type
Straight flange
No flange
Angled flange
A,C type
C type
B type
A type
Pin Assignment
OL5450L
(C type)
OL5451L
(A type)
OL5453L
(B type)
Drawing No: JOG-01146 Rev.5
-4-
JOG-01146 Rev.5
9. SAFETY INFORMATION ON THIS PRODUCT
A laser beam is emitted from this laser diode during operation.
The invisible or visible laser beam, directly or indirectly, may cause injury to
Laser Beam the eye
or loss of eyesight.
Do not look directly into the laser beam.
Avoid exposure to the laser beam, any reflected or collimated beam.
The product contains gallium arsenide, GaAs.
Caution
GaAs vapor and powder are hazardous to human health if inhaled, ingested or
GaAs
swallowed.
Product
Do not destory or burn the product.
Do not crush or chemically dissolve the product.
Do not put the product in the mouth.
Observe related laws and company regulations when discarding this product.
The product should be excluded from general industrial waste or household
garbage.
Caution
A glass-fiber is attached on the product. Handle with care.
Optical Fiber When the fiber is broken or damaged, handle carefully to avoid injury from
the damaged part or fragments.
Warning
All specifications described herein are subject to change without notice.
Drawing No: JOG-01146 Rev.5
-5-
热门器件
热门资源推荐
器件捷径:
E0 E1 E2 E3 E4 E5 E6 E7 E8 E9 EA EB EC ED EE EF EG EH EI EJ EK EL EM EN EO EP EQ ER ES ET EU EV EW EX EY EZ F0 F1 F2 F3 F4 F5 F6 F7 F8 F9 FA FB FC FD FE FF FG FH FI FJ FK FL FM FN FO FP FQ FR FS FT FU FV FW FX FY FZ G0 G1 G2 G3 G4 G5 G6 G7 G8 G9 GA GB GC GD GE GF GG GH GI GJ GK GL GM GN GO GP GQ GR GS GT GU GV GW GX GZ H0 H1 H2 H3 H4 H5 H6 H7 H8 HA HB HC HD HE HF HG HH HI HJ HK HL HM HN HO HP HQ HR HS HT HU HV HW HX HY HZ I1 I2 I3 I4 I5 I6 I7 IA IB IC ID IE IF IG IH II IK IL IM IN IO IP IQ IR IS IT IU IV IW IX J0 J1 J2 J6 J7 JA JB JC JD JE JF JG JH JJ JK JL JM JN JP JQ JR JS JT JV JW JX JZ K0 K1 K2 K3 K4 K5 K6 K7 K8 K9 KA KB KC KD KE KF KG KH KI KJ KK KL KM KN KO KP KQ KR KS KT KU KV KW KX KY KZ
索引文件:
1167  2010  1188  541  1954  24  41  11  40  16 
需要登录后才可以下载。
登录取消
下载 PDF 文件