历史上的今天
今天是:2025年03月18日(星期二)
2020年03月18日 | 小鹏汽车的电池技术路线从圆柱转向软包
2020-03-18 来源:《汽车电子瞭望台》
引言
小鹏汽车和我是很有缘分的一家新造车企业,在几位创始人刚开始出发的时候,那时候还取名叫桔子汽车。有很多的故事和精力,经过若干年的发展,也走了一些弯路。在电池系统方面就存在从圆柱电芯转向方壳和软包的路线。我想分为两篇,上篇主要针对 G3 的转变,下篇主要针对 P7 的高低配的选择。
各个车企 EE 架构的驱动要素

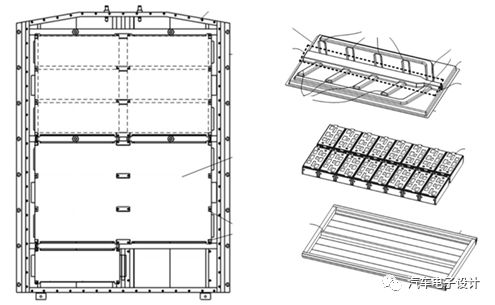
图 1 小鹏的 G3 电池技术路线
01 早期的圆柱动力系统
小鹏汽车的电池技术,一开始的定位是从 Tesla 的模组设计和工艺技术,进行学习、仿和提高。本质的问题是特斯拉依靠一番打拼有了非常稳定的电芯供应商,在超级工厂的建设中,出人出技术出钱。对小鹏汽车来说,在设计层面可以参考、对比、改造和优化,主要是后集成了液冷管,保险丝等关键技术,对部件的防火要求进行分配,将阻燃的要求放进去,落到实处的制造得需要 Pack 供应商。在电芯的选取上面,现在分为比克的 NCM 还有德朗能的 NCA,还有一个联动天翼(松下的国内对接口子)做 NCA。
备注:公告数据库里面有一款用了鹏辉能源的

表 1 推荐目录下的动力系统的配置
电池选区的策略在这里有几个问题:
1) 三种电池的特性是有差异的,特别是安全性设计,在不同特性的电池上是否足够有效,是需要花费很多的功夫的。这种选择可以看作一种防御策略,实际所有的圆柱电芯的选用实际的比例为如下图所示,圆柱的电芯的选择相比主要的新造车企业的方壳电芯的选择,对集成工艺的稳定性还有 BMS 的 SOC 精度和保护限制要求比较高,真正上量在跑,马上会有压力。

图 2 比克和联动天翼的选用比例
2) 电量不够 使用原有的 18650 电芯,是个很大挑战,即使使用松下的 NCA 最大的扩充也只有 50.5kWh,随着自主车企全面进入 400 公里,不到 400 公里的 G3 被诟病里程少就很麻烦。所以在这里程这件事情上,直接促使小鹏做了一个战略决策,从原有的圆柱电芯的技术路线切换到方壳和软包兼容的标准模组上来。我们可以翻阅早期小鹏汽车所做的专利,大部分都是圆柱电芯相关的工艺路线。

表 2 G3 版本对比
02 方壳和软包技术路线
在里程数还有动力总成配置的方面,小鹏汽车在动力总成来说走了一条相对特殊的技术路线,与大多数的传统车企的技术路线并不一致。因此在动力电池成本大幅下降的同时,没有享受到这个红利,事实上从 18650 的 tesla 早期的模组设计,切换到类似 Model 3 的长模组这个需要很大的挑战。如下图所示,G3 的这款车,早期是围绕类似 Model X 的矮 Pack 设计的,所以切换到方壳以后,为了尽可能利用空间,也尝试了在前排堆模组。而且为了有更好的一家,在标准模组上也导入了一家战略的软包供应商,在 G3 和 P7 上都实现了双供。在这里倒逼决策者的主要因素是成本、能量密度(补贴系数)还有电池能能(代表车辆的里程和与之对应的车型竞争力)。

图 3 2019 和 2020 年 G3 的电池系统对比
而在 P7 上则从 148mm 的电芯切换到 220mm 的电芯,但是为了考虑到轿车的设计,电芯的高度从 103mm 降低到 84.5mm,也就是 PPE 的设计目标规格。

图 4 P7 的电池专利示意图
小结:我觉得小鹏汽车的技术转向,在一段时间里面承受了很大的压力,当时车主在举着旗子是很难受的事情,但是切换过后整体的 G3 的竞争力跟上了 2020 年整体进步的节奏,有时候路是必须要去选的,到 P7 这点能把能耗降低,电池系统变化带来的设计红利功不可没
史海拾趣
|
随着通用无线分组业务(GPRS)的推出并与现有GSM共存,移动网络运营商正面临新的挑战。与任何新系统一样,GPRS网络在发展初期也经历了成长的痛苦,运营商需要迅速解决用户的问题,从而争取更多用户并最大程度取得投资回报。本文介绍用协议测试仪对流 ...… 查看全部问答> |
|
2008年,对于中国来说,的确是不平凡的一年。大灾大幸,大起大落。奥运会刚刚闭幕,奶和油又掀起了新一轮的波澜。 “三鹿门”转瞬之间由小变大,数千个孩子的生命安全引起了全社会的关注。短短几天,二十多家奶制品厂被查出添加有毒物质,包括全国 ...… 查看全部问答> |
|
在读取文件目录时,调用sprintf函数时,总是出错,不知问题在哪里,高手帮忙啊。 /*************************************************************************************** FunctionName : AppScanFiles()* Description &nbs ...… 查看全部问答> |
|
SystemState status = new SystemState(SystemProperty.PowerBatteryBackupStrength); status.Changed += new ChangeEventHandler(status_Changed); status绑定的是现有电池量的changed事件 当我电视改变,应该调用status_Changed这个函数 我是 ...… 查看全部问答> |
|
刚学习vxWorks,今天碰到了一个问题,想请教一下各位!先谢谢了! 今天看到了一个这样的函数,是有关msgQSend的! int DataProcess(char *pData, int DataLen) { char *ReceivePack = NULL; MNREMSG msgSend; &n ...… 查看全部问答> |




