历史上的今天
今天是:2024年12月29日(星期日)
2020年12月29日 | 以MSP430F448单片机为核心的简易交流数字电压表系统设计
2020-12-29 来源:elecfans
MSP430F44x系列是TI公司推出的一款超低功耗的16位单片机,其运算速度快而且体积小。片内集成了8路12位A/D、串行通信接口、看门狗定时器、比较器、硬件乘法器等外围设备模块,从而降低了应用电路的复杂程度,提高了系统的可靠性。该芯片可以工作于2.5 V和3.3 V两种电压下,并且可以处于休眠状态,此时的频率只有32768 Hz,功耗非常低,环境温度范围为-40~+125℃。这些优点非常适合设计便携式,且要求长时间连续工作,环境温度变化宽的智能仪器仪表设备。MSP430F44x系列单片机具有其他单片机无法比拟的优点,用其来实现交流电压的测量是一种很好的设计方案。
1 系统总体方案设计
本系统主要由以下4大模块组成:中央处理器、电源电路、电压极性转换电路和显示电路。
为了保证硬件电路设计的通用性,采用单级性电压测量的方法,将输入的双极性电压转换成单级性电压进行测量。然后将转换后的电压送入单片机A/D模拟通道进行模数转换,最终将转换的数字信号在LCD液晶上显示。系统设计框图如图1所示。

图1 系统设计框图
2 系统硬件设计
2.1 电压极性转换电路
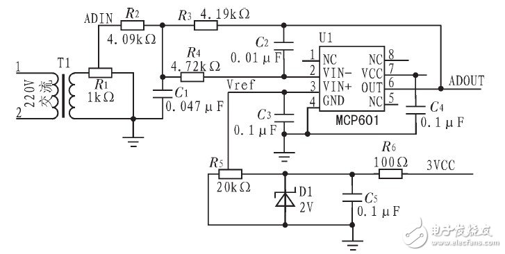
从图2的电路中可以得到,首先通过变压器将220 V的交流电压降成8 V的交流电压,再经过极性转换电路将双极性的交流电压转换为单级性的交流电压。电路中的R405电位器主要用于调节参考电压,R404电位器用于调节交流输入电压的幅度。经过上面电路的处理,可以将输入的交流电压转换成0~3 V的单级性交流电压,这样很容易使用MSP430单片机自带的A/D转换通道进行模拟量采集,从而实现交流电压的测量。其中,极性转换电路主要由放大电路实现,在此我采用MCP601放大芯片。

图2 电压极性转换电路
2.2 电源电路
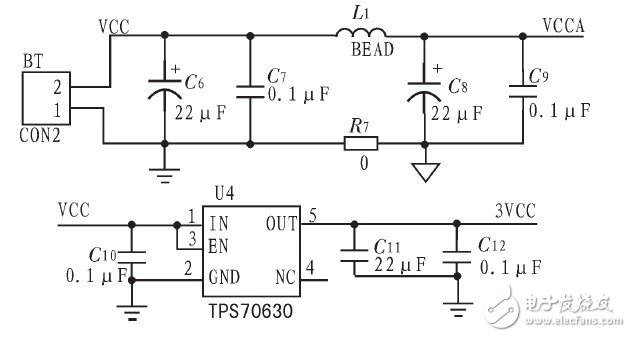
用电池给系统供电,由于MSP430系列有内置模拟电源和模拟地,所以要进行模拟电源和数字电源的转换,以便给芯片供电。然后将电池电源转换为3V左右的电源给系统供电。具体电路如图3所示。

图3 电源电路
2.3 A/D转换、输出显示电路及JTAG接口电路
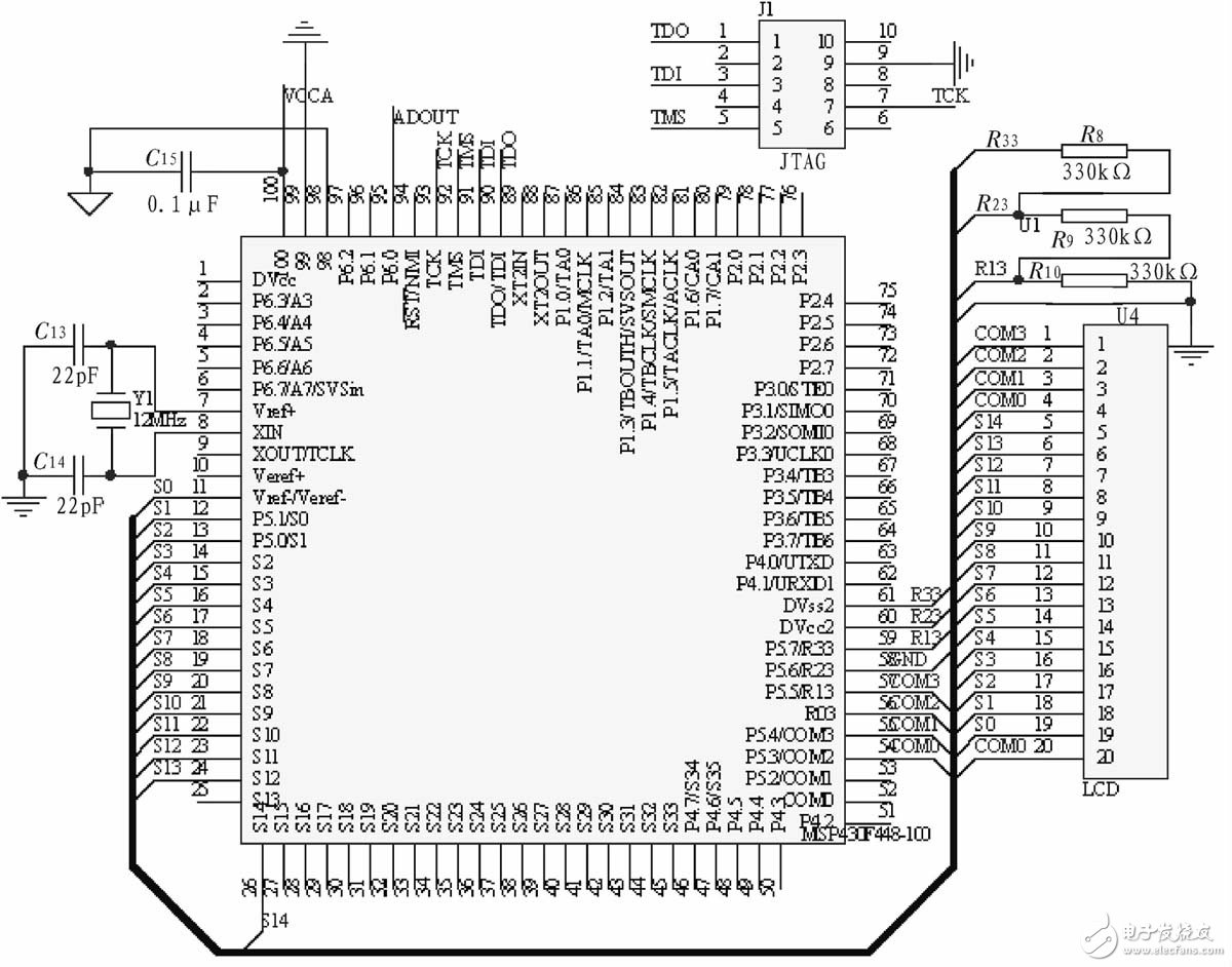
A/D转换用到了模拟输入通道A0,LCD显示用到了S0至S20,使用4MUX模式。液晶所需要的模拟信号由外接的等值电阻产生。具体电路如图4所示。

图4 A/D、LCD、JTAG电路
3 系统软件设计
对于交流采集,需要在1个工作周期内采集40个点,即时间间隔为500μs,时间间隔采用定时器实现。

图5 程序流程图
3.1 采样、A/D转换子程序


3.2 显示子程序

4 测试结果分析
电路测试结果如表1所示。
表1 电路测试结果

通过上述结果分析,测量较高值时测量精度有点低,误差大。但数值小的时候测量精度很高。不足之处是本设计的外围分压电路是通过调节电位器来实现的分压效果,实际电路受到电压源等因素影响较大,这之间会因为电压值的不同而引起效果好坏的改变。
5 结论
文中的程序通过MSP430开发工具IAR EmbeddedWorkbench编译、运行。在实验室做成一个简易电路,并将程序下载到电路板上进行运行,发现此电路可以实现测量交流电压的功能,但在精确度方面需要进一步改进。
史海拾趣
|
引言 嵌入式系统是指以应用为中心,以计算机技术为基础,软、硬件可裁剪,适应应用系统对功能、体积、成本、可靠性、功耗严格要求的专用计算机系统。嵌入式系统是面向应用的,系统的硬件选型和软件开发模式都必须根据具体 ...… 查看全部问答> |
|
摘要:介绍如何用PowerPC860(MPC860)进行FPGA(Xilinx的Virtex-II系列)的配置;给出进行FPGA配置所需的详细时序图和原理图。本配置基本原理对其它FPGA的配置也适用。 关键词:PowerPC860 FPGA Xilinx 1 概述 MPC860是基于PowerPC结构的通信控 ...… 查看全部问答> |
|
LPC2103-UART0中断使能寄存器疑问 UART0中断使能寄存器中,RBR中断使能,THRE中断使能及Rx线状态中断使能,三个中断使能分别具体是什么意思呢?或者说RBR,THRE的意思是什么? 百度谷歌找半天没有,金山词霸也没有,知道的前辈可否告知一下,小弟 ...… 查看全部问答> |
|
我相信电子工程世界论坛,管理员,版主是最棒的嘻嘻。。恳求你们帮帮忙。这两天老师给了份作业,明天要上交了,到现在还没思路,发题目上来请教各位高手。。 题目1:数控直流电压源基本要求:电源供电正负15V, 10 欧姆负载,电压输出范围 ...… 查看全部问答> |
|
用MSCOMM32.OCX,串口初始化和输出都正常,但不能取输入缓冲区的值,为什么? 步骤如下 1)用SUDT SerialNull 软件虚拟了两个串口com15,com16 2)程序对com15,com16初始化,com15用做模拟接收,com16用做模拟发送 Ole_MSC.object.CommPort=15 &nb ...… 查看全部问答> |
|
小弟刚刚开始学DSP,在CCS4.2环境连接仿真器和开发板时,每次一点击Launch TI Debgger的时候就会出现这个问题,之前都是好的,不知道这个是怎么回事啊?希望各位前辈不吝赐教!… 查看全部问答> |
|
欢迎来到电源设计小贴士!随着现在对更高效、更低成本电源解决方案需求的强调,我们创建了该专栏,就各种电源管理课题提出一些对您有帮助的小技巧。该专栏面向各级设计工程师。无论您是从事电源业务多年还是刚刚步入电源领域,您都可以在这里找到一 ...… 查看全部问答> |
|
本人是大二学生,想学习做一个控制电路。。。要用到AD转换 pwm输出等。。 想问问如何入门学习 现在已经学完微机原理 数电 电路 要看什么书,用什么开发板,要不要仿真器? 希望各位多多指教… 查看全部问答> |




