历史上的今天
今天是:2024年08月30日(星期五)
2021年08月30日 | 电缆故障测试仪的粗测方法
2021-08-30 来源:eefocus
大量的事实证明,大多数供电事故都发生在电源的分配购网络中,如高压开关柜中的各种附属设施、高压绝缘瓷瓶及地下电缆。而故障率最高,最难排除的又要属电力电缆了。一旦故障发生,如何判断故障类型,如何根据故障类型和本单位的设备条件选择合适的寻测方法,直接影响着对事故处理的速度。事实上,电缆可能发生任何类型的故障,能否排除故障常取决于现场工程技术人员的实践经验、他们所熟悉的特殊的试验设备以及他们能否正确的选用测试方法。
按照用低压(或低压脉冲)还是用高压寻测故障的方法,可将粗测方法分为两大类:①低阻、接地故障及断路故障的寻测方法;②高阻故障的寻测方法。
下面就按两大分类较详细的介绍各种寻测方法。
(一)低阻、接地故障及断路故障的寻测方法(脉冲测量法)
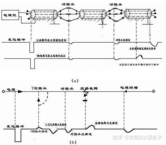
利用这种方法,可以直观地从显示屏中观察出故障点是开路还是短路性质的故障,并且还可以直接算出故障点距测试的距离。对于低阻、短路故障及断路故障,最简便直观的测试方法莫过于脉冲测量法了。 所提供的波形,对于判断较为复杂的线路结构上的故障往往具有相当重要的参考价值。用电桥法无法解决的问题(如线路上有 T 型接头,或中间有 形状的并行电缆等),它都可以提供相当多的分析资料。当然,要解释所观察到的各种复杂现象,是需要技术人员有起码的测试训练和大量实践经验与技巧的。
工作原理:
测试时,在故障相上注入低压发送脉冲,该脉冲沿电缆传播直到阻抗失配的地方,如果中间接头、T 型接头、短路点、断路点和终端头等,在这些点上都会引起波的反射,反射脉冲回到电缆测试端时被试验设备接收。
故障的性质类型,由反射脉冲极性决定。如果我们发送的测量脉冲是负极性的,反射脉冲是负极性,表示是断路故障或终端头开路;回波是正脉冲,则是短路

(a)无故障相和故障相的实测波形比较;
(b)具有 T 型馈电结构的故障电缆实测波形
(二)高阻故障的寻测方法
电力电缆的高阻故障几乎占全部故障率的 90%以上。在第一节里已经对电缆故障的性质作了详细分析。就大部分故障本质来说,都属于绝缘体的损坏。高阻故障是由于绝缘电阻和绝缘介质的抗电强度下降所致。对于脉冲法,由于故障点等效阻抗几乎等于电缆特性阻抗,所以反射系数几乎等于零,因得不到反射脉冲而无法 测量。
从介质的电击穿现象出发,只要对电缆加上足够高的电压(当然低于最高试验电压),故障点就会发生击穿现象。在击穿的瞬间,故障点被放电电弧短路,所以在故障点放电前后,就产生电压的路变。由于介质击穿,其电离过程需要一定的时间,而弧光放电一般要持续数百微秒到几个毫秒,因此跃变电压在放电期间就以波的形式在故障点和电缆端头之间来回反射。如果在电缆的端头(始端或终端),把瞬时跃变电压及来回反射的波形记录下来,便可看出电波来回反射的时间;再根据电波在电缆中的传播速度,就可以算出故障点到端头的距离。基于这个物理机理产生了各种各样的闪络测试法。
下面国电西高电气具体介绍各种高阻故障的寻测方法。
1、直流高压闪络法
直流高压闪络法适用于闪络性故障,即故障点没有形成电阻信道(或电阻值极高),但电压升高到一定值时(通常是几万伏)就会产生闪络现象。 直流高压闪络法的接线图如图 3 所示。

工作原理: 测试电路按图 3 接好以后,调节调压器,逐渐升高测试电压,此时闪测仪处于待测状态。当电压升高到一定值时,故障点产生闪络,闪测仪立即显示出测量端的波型,如图 4 所示,读(b)图波形的起始到下降处拐点间的实际间隔可知实测故障距离。

(a) (b)
电缆测试端点的波形是这样形成的:
故障点被击穿而形成的短路电弧使故障点电压瞬时突变到接近于零,即产生一个与所加直流负高压极性相反的 正突跳电压。这个正突跳电压沿电缆向测试端传播,并于时间 t1 到达测试端(见图 4(b))。这个正突跳电压波在测量端产生正反射(因测量端电阻远大于电缆我阻抗,相当于开路反射)。这个反射波又沿电缆向故障点传播,在到达故障点时又会被短路电弧反射而产生一个负向突跳电压波(因故障点短路电弧的等效电阻远小于电缆的特性阻抗,相当于短路反射),并在时间t2 到达测量端。上述的反射过程将在测量端和故障点之间持续下去。不过振荡的幅度越来越小,边沿越来越圆滑,这主要是电波在电缆中传输的损耗和失真所致。
为了观察,在测量端通过隔直流电容器 C 和电阻分压器 R1R2 隔直流与衰减后输入闪测仪记录。
在实际情况中,电缆的闪络性故障是极普遍的。凡预试击穿的故障几乎都有闪络过程,运行击穿的故障,约半数也有闪络过程。当然闪络过程存在的时间长短是很不一致的,有的故障直至“粗测”、“定点”完成,闪络过程仍然存在;而有些故障,只闪络几次就形成稳定的电阻信道,不再闪络。由于直流高压闪络法比后面介绍的几种冲击闪络法精度高,故应尽可能地用直流高压闪络法测量。一旦发现故障电缆上有闪络过程,应抓紧时机,珍惜这样的现象,设法延长闪络过程存在的时间
史海拾趣
|
CPU是STM32F103CB,无操作系统。 通过UART1接受GPRS发来的数据,在中断函数中 USART1_IRQHandler 中进行处理 unsigned char a_GPRSData[500]; unsigned int g_DataLength; void USART1_IRQHandler(void) ...… 查看全部问答> |
|
是一个U盘感染的病毒,在D盘中出现一个autorun.inf文件,同时点D盘右健会多一个\"浏览\"项,而这个文件的内容是: [autorun] open=.\\recycled\\info.exe shell\\1=浏览 shell\\1\\Command=.\\recycled\\info.exe shellexecute=.\\recycled\\info. ...… 查看全部问答> |
|
#include sbit ds=P3^7; //0-F数码管显示(共阴) unsigned char code table[]={0x3f,0x06,0x5b,0x4f,0x66, 0x6d,0x7d,0x07,0x7f,0x6f,0x77,0x7c,0x39,0x5e,0x79,0x71}; //0-9数码管的显示,共阴带小数点 unsigned char code tabledot[]={ ...… 查看全部问答> |
|
使用的是ep2s180f1020i4的片子,配置芯片epcs64,用flash programmer 进行烧写,从状态栏来看 烧写成功了,但是上电后没有任何反应,不止nios没跑起来,连逻辑都没烧进去,但是在线运行时是正常的,单独烧写逻辑从新上电也是可以起来的,就是用nios ...… 查看全部问答> |
|
经过再三调试,我人生的第一版开关电源诞生了,激动ing,不过也仍有很多问题没有解决!希望高手指教!这里好像不能传附件啊,详细过程在下面链接里面了,有兴趣的亲可以看看,多多指教!… 查看全部问答> |




