历史上的今天
今天是:2024年11月05日(星期二)
2021年11月05日 | 51单片机实现利用AT24C02进行掉电后的数据保存
2021-11-05 来源:eefocus
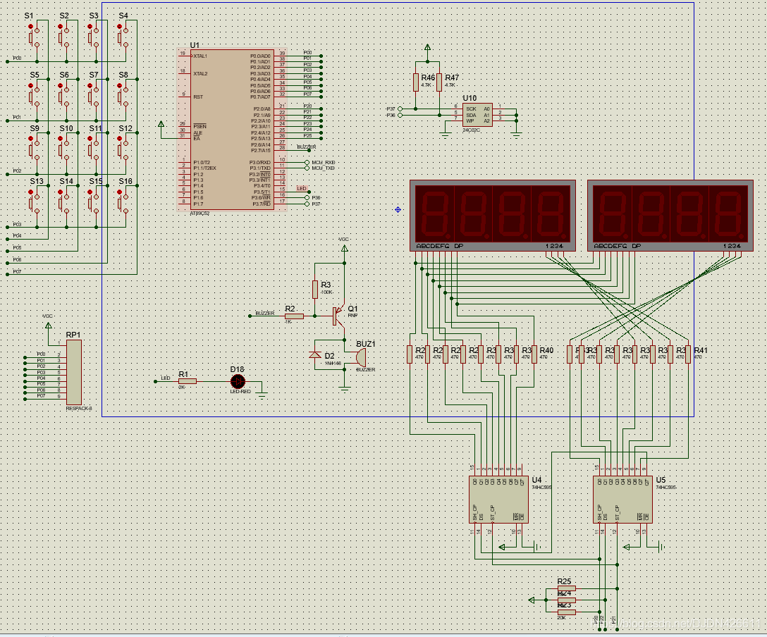
一、使用proteus绘制简单的电路图,用于后续仿真

关于IIC的读写:
二、编写程序
/********************************************************************************************************************
---- @Project: AT24C02
---- @File: main.c
---- @Edit: ZHQ
---- @Version: V1.0
---- @CreationTime: 20200721
---- @ModifiedTime: 20200721
---- @Description: 实现功能:
---- 4个被更改后的参数断电后不丢失,数据可以保存,断电再上电后还是上一次最新被修改的数据。
---- 一共有4个窗口。每个窗口显示一个参数。
---- 第8,7,6,5位数码管显示当前窗口,P-1代表第1个窗口,P-2代表第2个窗口,P-3代表第3个窗口,P-4代表第1个窗口。
---- 第4,3,2,1位数码管显示当前窗口被设置的参数。范围是从0到9999。S1是加按键,按下此按键会依次增加当前窗口的参数。S5是减按键,按下此按键会依次减少当前窗口的参数。S9是切换窗口按键,按下此按键会依次循环切换不同的窗口。
----
---- 单片机:AT89C52
********************************************************************************************************************/
#include "reg52.h"
/*——————宏定义——————*/
#define FOSC 11059200L
#define BAUD 9600
#define T1MS (65536-FOSC/12/500) /*0.5ms timer calculation method in 12Tmode*/
#define OP_READ 0xa1 /*器件地址以及读取操作,0xa1即为1010 0001B*/
#define OP_WRITE 0xa0 /*器件地址以及写入操作,0xa0即为1010 0000B*/
#define const_key_time1 9 /*按键去抖动延时的时间*/
#define const_key_time2 9 /*按键去抖动延时的时间*/
#define const_key_time3 9 /*按键去抖动延时的时间*/
#define const_voice_short 20 /*蜂鸣器短叫的持续时间*/
/*——————变量函数定义及声明——————*/
/*蜂鸣器的驱动IO口*/
sbit BEEP = P2^7;
/*LED*/
sbit LED = P3^5;
/*按键*/
sbit Key_S1 = P0^0; /*对应S1键,加键*/
sbit Key_S2 = P0^1; /*对应S5键,减键*/
sbit Key_S3 = P0^2; /*对应S9键,切换窗口*/
sbit Key_S4 = P0^3; /*对应S13键,复位*/
sbit Key_Gnd = P0^4;
/*数码管*/
sbit Dig_Hc595_Sh = P2^0;
sbit Dig_Hc595_St = P2^1;
sbit Dig_Hc595_Ds = P2^2;
/*EEPROM*/
sbit eeprom_scl_dr = P3^7; /*时钟线*/
sbit eeprom_sda_dr_sr = P3^6; /*数据的输出线和输入线*/
unsigned char ucKeySec = 0; /*被触发的按键编号*/
unsigned int uiKeyTimeCnt1 = 0; /*按键去抖动延时计数器*/
unsigned char ucKeyLock1 = 0; /*按键触发后自锁的变量标志*/
unsigned int uiKeyTimeCnt2 = 0; /*按键去抖动延时计数器*/
unsigned char ucKeyLock2 = 0; /*按键触发后自锁的变量标志*/
unsigned int uiKeyTimeCnt3 = 0; /*按键去抖动延时计数器*/
unsigned char ucKeyLock3 = 0; /*按键触发后自锁的变量标志*/
unsigned int uiVoiceCnt = 0; /*蜂鸣器鸣叫的持续时间计数器*/
unsigned char ucVoiceLock = 0; /*蜂鸣器鸣叫的原子锁*/
unsigned char ucDigShow8; /*第8位数码管要显示的内容*/
unsigned char ucDigShow7; /*第7位数码管要显示的内容*/
unsigned char ucDigShow6; /*第6位数码管要显示的内容*/
unsigned char ucDigShow5; /*第5位数码管要显示的内容*/
unsigned char ucDigShow4; /*第4位数码管要显示的内容*/
unsigned char ucDigShow3; /*第3位数码管要显示的内容*/
unsigned char ucDigShow2; /*第2位数码管要显示的内容*/
unsigned char ucDigShow1; /*第1位数码管要显示的内容*/
unsigned char ucDigDot8; /*数码管8的小数点是否显示的标志*/
unsigned char ucDigDot7; /*数码管7的小数点是否显示的标志*/
unsigned char ucDigDot6; /*数码管6的小数点是否显示的标志*/
unsigned char ucDigDot5; /*数码管5的小数点是否显示的标志*/
unsigned char ucDigDot4; /*数码管4的小数点是否显示的标志*/
unsigned char ucDigDot3; /*数码管3的小数点是否显示的标志*/
unsigned char ucDigDot2; /*数码管2的小数点是否显示的标志*/
unsigned char ucDigDot1; /*数码管1的小数点是否显示的标志*/
unsigned char ucDigShowTemp = 0; /*临时中间变量*/
unsigned char ucDisplayDriveStep = 1; /*动态扫描数码管的步骤变量*/
unsigned char ucWd1Update = 1; /*窗口1更新显示标志*/
unsigned char ucWd2Update = 0; /*窗口2更新显示标志*/
unsigned char ucWd3Update = 0; /*窗口3更新显示标志*/
unsigned char ucWd4Update = 0; /*窗口4更新显示标志*/
unsigned char ucWd = 1; /*本程序的核心变量,窗口显示变量。类似于一级菜单的变量。代表显示不同的窗口。*/
unsigned int uiSetData1 = 0; /*本程序中需要被设置的参数1*/
unsigned int uiSetData2 = 0; /*本程序中需要被设置的参数2*/
unsigned int uiSetData3 = 0; /*本程序中需要被设置的参数3*/
unsigned int uiSetData4 = 0; /*本程序中需要被设置的参数4*/
unsigned char ucTemp1 = 0; /*中间过渡变量*/
unsigned char ucTemp2 = 0; /*中间过渡变量*/
unsigned char ucTemp3 = 0; /*中间过渡变量*/
unsigned char ucTemp4 = 0; /*中间过渡变量*/
void Dig_Hc595_Drive(unsigned char, unsigned char);
/*根据原理图得出的共阴数码管字模表*/
code unsigned char Dig_Table[] =
{
0x3f, /*0 序号0*/
0x06, /*1 序号1*/
0x5b, /*2 序号2*/
0x4f, /*3 序号3*/
0x66, /*4 序号4*/
0x6d, /*5 序号5*/
0x7d, /*6 序号6*/
0x07, /*7 序号7*/
0x7f, /*8 序号8*/
0x6f, /*9 序号9*/
0x00, /*不显示 序号10*/
0x40, /*- 序号11*/
0x73, /*P 序号12*/
};
/**
* @brief 延时函数
* @param 无
* @retval 无
**/
void Delay_Long(unsigned int uiDelayLong)
{
unsigned int i;
unsigned int j;
for(i=0;i for(j=0;j<500;j++) /*内嵌循环的空指令数量*/ { ; /*一个分号相当于执行一条空语句*/ } } } /** * @brief 延时函数 * @param 无 * @retval 无 **/ void delay_short(unsigned int uiDelayShort) { unsigned int i; for(i=0;i ; /*一个分号相当于执行一条空语句*/ } } /** * @brief 开始数据传送函数 * @param 无 * @retval 开始位 **/ void start24(void) { eeprom_sda_dr_sr = 1; eeprom_scl_dr = 1; delay_short(15); eeprom_sda_dr_sr = 0; delay_short(15); eeprom_scl_dr = 0; } /** * @brief 结束数据传送函数 * @param 无 * @retval 结束位 **/ void stop24(void) { eeprom_sda_dr_sr = 0; eeprom_scl_dr = 1; delay_short(15); eeprom_sda_dr_sr = 1; } /** * @brief 确认位时序函数 * @param 无 * @retval 检测应答 **/ void ack24(void) { eeprom_sda_dr_sr = 1; eeprom_scl_dr = 1; delay_short(15); eeprom_scl_dr = 0; delay_short(15); } /** * @brief 读函数 * @param 无 * @retval 读取一个字节的时序 **/ unsigned char read24(void) { unsigned char outdata, tempdata; outdata = 0; eeprom_sda_dr_sr = 1; /*51单片机的IO口在读取数据之前要先置一,表示数据输入*/ delay_short(2); for(tempdata = 0; tempdata < 8; tempdata ++) { eeprom_scl_dr = 0; delay_short(2); eeprom_scl_dr = 1; delay_short(2); outdata = outdata << 1; if(eeprom_sda_dr_sr == 1) { outdata ++; } eeprom_sda_dr_sr = 1; delay_short(2); } return(outdata); } /** * @brief 写函数 * @param dd * @retval 发送一个字节的时序 **/ void write24(unsigned char dd) { unsigned char tempdata; for(tempdata = 0; tempdata < 8; tempdata ++) { if(dd >= 0x80) { eeprom_sda_dr_sr = 1; } else { eeprom_sda_dr_sr = 0; } dd = dd <<1; delay_short(2); eeprom_scl_dr = 1; delay_short(4); eeprom_scl_dr = 0; } } /** * @brief 读函数 * @param address * @retval 从一个地址读取出一个字节数据 **/ unsigned char read_eeprom(unsigned char address) { unsigned char dd, cAddress; cAddress = address; /*把低字节地址传递给一个字节变量。*/ EA = 0; /*禁止中断*/ start24(); /*IIC通讯开始*/ write24(OP_WRITE); /*此字节包含读写指令和芯片地址两方面的内容。*/ /*指令为写指令。地址为"000"的信息,此信息由A0,A1,A2的引脚决定*/ ack24(); /*发送应答信号*/ write24(cAddress); /*发送读取的存储地址(范围是0至255)*/ ack24(); /*发送应答信号*/ start24(); write24(OP_READ); /*此字节包含读写指令和芯片地址两方面的内容。*/ /*指令为读指令。地址为"000"的信息,此信息由A0,A1,A2的引脚决定*/ ack24(); /*发送应答信号*/ dd = read24(); /*读取一个字节*/ ack24(); /*发送应答信号*/ stop24(); /*停止*/ /* * 在写入或者读取完一个字节之后,一定要加上一段延时时间。在11.0592M晶振的系统中, * 写入数据时经验值用delay_short(2000),读取数据时经验值用delay_short(800)。 * 否则在连续写入或者读取一串数据时容易丢失数据。如果一旦发现丢失数据, * 应该适当继续把这个时间延长,尤其是在写入数据时。 */ delay_short(800); /*此处最关键,此处的延时时间一定要,而且要足够长,此处也是导致动态数码管闪烁的根本原因*/ EA = 1; /*允许中断*/ return(dd); } /** * @brief 写函数 * @param address, dd * @retval 往一个地址存入一个字节数据 **/ void write_eeprom(unsigned char address, unsigned char dd) { unsigned char cAddress; cAddress = address; /*把低字节地址传递给一个字节变量。*/ EA = 0; /*禁止中断*/ start24(); /*IIC通讯开始*/ write24(OP_WRITE); /*此字节包含读写指令和芯片地址两方面的内容。*/ /*指令为写指令。地址为"000"的信息,此信息由A0,A1,A2的引脚决定*/ ack24(); /*发送应答信号*/ write24(cAddress); /*发送读取的存储地址(范围是0至255)*/ ack24(); /*发送应答信号*/ write24(dd); /*写入存储的数据*/ ack24(); /*发送应答信号*/ stop24(); /*停止*/ delay_short(2000); /*此处最关键,此处的延时时间一定要,而且要足够长,此处也是导致动态数码管闪烁的根本原因*/ EA = 1; /*允许中断*/ } /** * @brief 读函数 * @param address * @retval 从一个地址读取出一个int类型的数据 **/ unsigned int read_eeprom_int(unsigned int address) { unsigned char ucReadDataH; unsigned char ucReadDataL; unsigned int uiReadDate; ucReadDataH = read_eeprom(address); /*读取高字节*/ ucReadDataL = read_eeprom(address + 1); /*读取低字节*/ uiReadDate = ucReadDataH; /*把两个字节合并成一个int类型数据*/ uiReadDate = uiReadDate <<8; uiReadDate = uiReadDate + ucReadDataL; return(uiReadDate); } /** * @brief 写函数 * @param address, uiWriteData * @retval 往一个地址存入一个int类型的数据 **/ void write_eeprom_int(unsigned int address, unsigned int uiWriteData) { unsigned char ucWriteDataH; unsigned char ucWriteDataL; ucWriteDataH = uiWriteData >>8; ucWriteDataL = uiWriteData; write_eeprom(address, ucWriteDataH); /*存入高字节*/ write_eeprom((address + 1), ucWriteDataL); /*存入低字节*/ } /** * @brief 定时器0初始化函数 * @param 无 * @retval 初始化T0 **/ void Init_T0(void) { TMOD = 0x01; /*set timer0 as mode1 (16-bit)*/ TL0 = T1MS; /*initial timer0 low byte*/ TH0 = T1MS >> 8; /*initial timer0 high byte*/ } /** * @brief 外围初始化函数 * @param 无 * @retval 初始化外围 * 让数码管显示的内容转移到以下几个变量接口上,方便以后编写更上一层的窗口程序。 * 只要更改以下对应变量的内容,就可以显示你想显示的数字。 **/ void Init_Peripheral(void) { ucDigDot8 = 0; ucDigDot7 = 0; ucDigDot6 = 0; ucDigDot5 = 0; ucDigDot4 = 0; ucDigDot3 = 0; ucDigDot2 = 0; ucDigDot1 = 0; ET0 = 1;/*允许定时中断*/ TR0 = 1;/*启动定时中断*/ TR1 = 1; ES = 1; /*允许串口中断*/ EA = 1;/*开总中断*/ /* * 如何初始化EEPROM数据的方法。在使用EEPROM时,这一步初始化很关键! * 第一次上电时,我们从EEPROM读取出来的数据有可能超出了范围,可能是ff。 * 这个时候我们应该给它填入一个初始化的数据,这一步千万别漏了。另外, * 由于int类型数据占用2个字节,所以以下4个数据挨着的地址是0,2,4,6. */ uiSetData1 = read_eeprom_int(0); /*读取uiSetData1,内部占用2个字节地址*/ if(uiSetData1 > 9999) /*不在范围内*/ { uiSetData1 = 0; /*填入一个初始化数据*/ write_eeprom_int(0, uiSetData1); /*存入uiSetData1,内部占用2个字节地址*/ } uiSetData2 = read_eeprom_int(2); /*读取uiSetData2,内部占用2个字节地址*/ if(uiSetData2 > 9999) /*不在范围内*/
史海拾趣
|
altium designer 和Protel 99se哪个更好? 我只用过protel 99se 但是听说altium designer 很不错,就有打算把protel换成altium designer ,大家说觉得有必要吗,有用过的大侠现身说法一下吧 呵呵多谢了 比如说,altium designer 好不好上手 资料好不好找 呵呵… 查看全部问答> |
|
gpio寄存器都是以组的形式出现(一个寄存器对应一组gpio.pin),我们的多个驱动会用到同一组gpio的不同pin来做一些使能复位等控制,那么会出现对不同pin但同组即同寄存器操作的状况吗?在同一进程下,我们可以用线程同步的互斥体来避免冲突。如果是 ...… 查看全部问答> |
|
【项目内容描述】把原来裸机写的3000行代码移植到ucos上,使具有tcp/ip的socket通讯功能,和别的主机通过tcp/ip通信 最好在北京。 费用大概1.5万左右,还可以再商量。 联系qq:340283020… 查看全部问答> |






