PLC定位控制项目配置过程
2025-03-11 来源:elecfans
一、项目配置方法
通过工艺对象的方式进行驱动的基本定位器功能,驱动工艺对象的使用说明如下。
(1) 新建博途项目,添加1500PLC,组态与驱动的网络连接

(2) 配置驱动的通信报文为111
示例1. V90 PN的设置

示例2. S120的设置

(3) 双击“工艺对象”中的“新增对象”,在弹出的画面中选择“SINAMICS”

(4) 为工艺对象配置驱动,本示例选择S120中的驱动轴_1

(5) 在程序块中调用“TO_BasicPos”命令来实现驱动的基本定位功能控制

二、TO_BasicPos功能块介绍
TO_BasicPos功能块输入/输出参数说明见表2-1。
表2-1 TO_BasicPos功能块输入/输出参数说明



三、特别说明
【延伸阅读】博途V17到底增加了什么新功能?
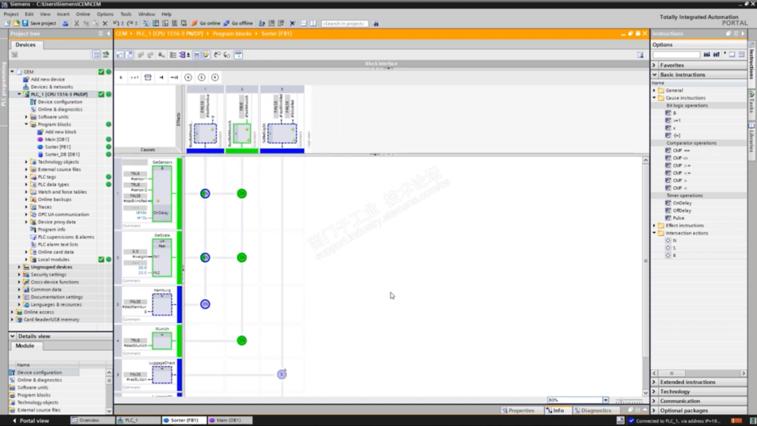
(1)新添加两个编辑器CFC和CME用于以图形化配置的方式设计控制程序。S7-1500支持CFC和CME编辑器,S7-1200支持CME编辑器。图形化的配置界面,可以使机器设备之间的逻辑关系简单明了,一目了然。这对于从事于过程控制的同学们是一个福音。CEM意为因果矩阵,连接不同的因,对应不同的果。使用一个矩阵,开发人员可以根据因果关系的原则配置模块之间的依赖关系。下面一起来看看CEM的基本风格和界面。
CEM集成在FB选项中

竖对应着causes,横对应着effects

编程指令是FBD指令,有基本的与或非,比较指令,还有延时指令。

动作类似于Graph,有N S R。

选择几个cause,会影响effect

123cause影响effect1 ; 124cause影响effect2。

实际监控中效果,124cause满足条件,影响effect2输出。

动作为S R的效果


自动化系统技术高级专家崔坚点评:
对于离散控制,通常使用STL、LAD、SCL和Graph;对于过程控制例如西门子的PCS7,使用CFC和CEM,这不是编程方式而是设计方式,如果还有顺序控制,可以使用SFC(相当于Graph)。
CFC和CEM连接的都是现成的函数和函数块,这种连接方式都是面向控制对象的,所以控制对象必须预先进行标准化的编程,也就是说在库中必须有不同对象的函数而且还要丰富,不知道在V17中是否会提供大量的控制对象的函数。
原先我们估计TIA博途不会集成CFC,考虑到TIA博途是用于离散行业的,但是又要集成到V17中,可能是基于程序结构化和标准化的考虑,使用CFC连接不同的控制对象管脚还是比较方便的。
如果提供CFC的库,库中是否包含用于运动控制的函数,例如替代位置模块FM458的函数库?
(2)Robot Library是通过和机器人之间建立统一的接口、共享的工程环境,和统一的操作方式实现控制的,目前只对一些主流的机器人制造商适用,如KUKA、ABB。 S7-1500增加了一款边缘计算模块TM MFP,这款模块使S7-1500具有边缘计算能力,模块支持多种应用程序,如Proneta、Simatic Flow Creator,也可以通过高级语言自己开发应用程序用于边缘计算。该模块也可以通过以太网连接到S7-1200或各种伺服上,用于处理获得的PLC和伺服的数据。
- 嵌入式的风向变了:2026纽伦堡嵌入式展透露这些趋势
- 高通确认不在GDC 2026发布新款骁龙G系列掌机处理器SoC
- 行业评论 从工具到平台:如何化解跨架构时代的工程开发和管理难题
- 面向嵌入式部署的神经网络优化:模型压缩深度解析
- 摩尔线程MTT S5000全面适配Qwen3.5三款新模型
- 阿里达摩院发布玄铁C950,打破全球RISC-V CPU性能纪录
- Mujoco中添加Apriltag标签并实现相机识别教程
- 英飞凌与宝马集团携手合作,基于Neue Klasse架构塑造软件定义汽车的未来
- 物理AI仿真新突破:摩尔线程与五一视界共建全栈国产化生态
- 爆火的OpenClaw! 告别云端,米尔RK3576开发板本地部署
- 莱迪思加入英伟达 Halos生态系统,通过Holoscan传感器桥接技术提升物理人工智能安全性
- 芯科科技闪耀2026嵌入式世界展 以Connected Intelligence赋能,构建边缘智能网联新生态
- 边缘计算主机盒选购指南:五大核心指标解析
- Arm AGI CPU 更多细节:台积电 3nm 制程、Neoverse V3 微架构
- Arm AGI CPU 重磅发布:构筑代理式 AI 云时代的芯片基石
- Arm 拓展其计算平台矩阵,首次跨足芯片产品
- 阿里达摩院发布RISC-V CPU玄铁C950,首次原生支持千亿参数大模型
- 边缘 AI 加速的 Arm® Cortex® ‑M0+ MCU 如何为电子产品注入更强智能
- 阿里达摩院发布玄铁C950,打破全球RISC-V CPU性能纪录




